Szafa wisząca rack 19" 15Ux400 IP54 Ściany boczne pełne Drzwi przeszklone Wewnętrzna szara SWK19-15U-40-DS-W
od 4 do 10
Cena regularna:
Cena regularna:
towar niedostępny
dodaj do przechowalni
Opis

Szafa rack wisząca 19" 15U 600x400mm IP54 SWK | Specyfikacja produktu:
-
Wysokiej jakości konstrukcja z blachy stalowej DC01, malowanej proszkowo na kolor RAL 7035. Drzwi z szybą hartowaną
-
Poliuretanowa uszczelka na drzwiach zapewniająca szczelność i ochronę przed kurzem i wilgocią
-
Po 12 otworów Ø29 mm na górze i dole – umożliwiających montaż wentylatorów lub przepustów kablowych
-
W zestawie: 2 sztuki wkładek filtracyjnych do poprawy cyrkulacji powietrza
-
Maksymalna nośność: do 60 kg – solidne mocowanie sprzętu IT i telekomunikacyjnego
-
Stopień ochrony IP54 – skuteczna bariera przeciw pyłowi i rozpryskom w warunkach wewnętrznych
-
Forma dostawy: szafa rack dostarczana w stanie złożonym – gotowa do montażu na ścianie
-
Zastosowanie: do instalacji wewnętrznych – biura, serwerownie, hale przemysłowe, monitoring, automatyka

Zastosowanie szafy rack wiszącej SWK:
Szafa wisząca rack 19" 15U 600x400 IP54 to kompaktowa i wytrzymała szafa rack wisząca przeznaczona do zastosowań wewnętrznych w sieciach teletechnicznych, systemach monitoringu CCTV, automatyce przemysłowej oraz instalacjach elektrycznych. Doskonale sprawdzi się jako szafa dystrybucyjna w biurach, serwerowniach, halach produkcyjnych i pomieszczeniach technicznych.

Konstrukcja szafy wiszącej rack SWK
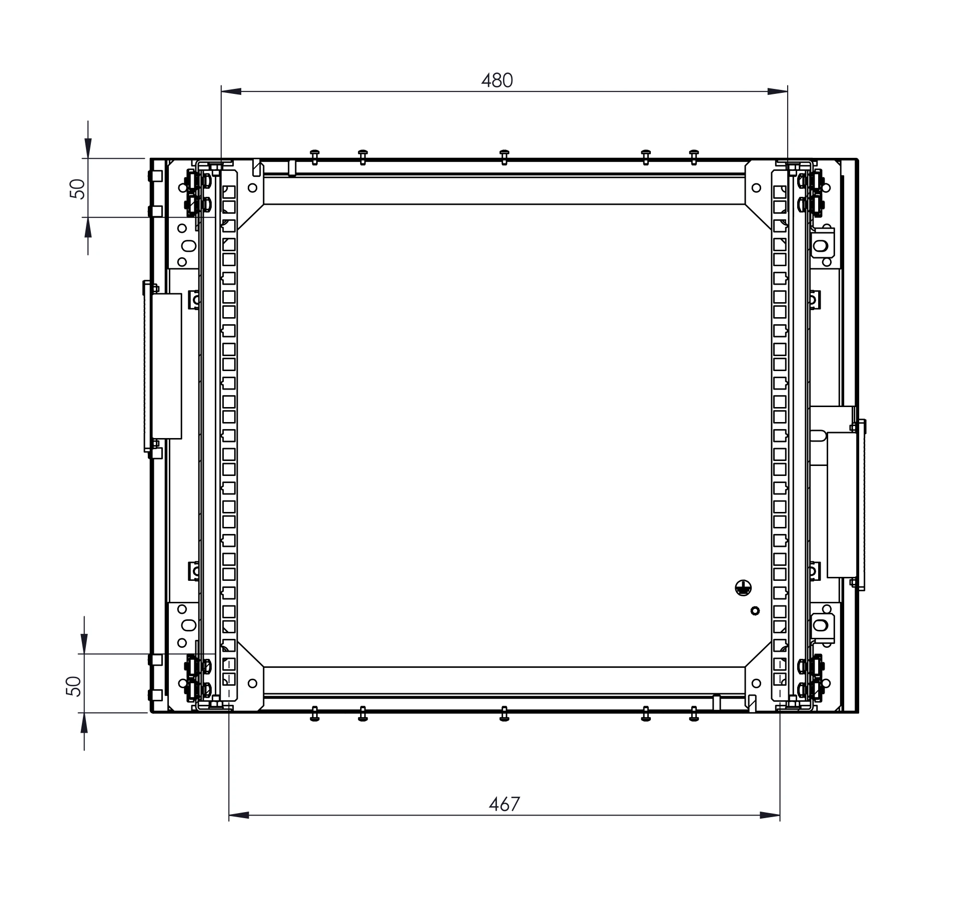
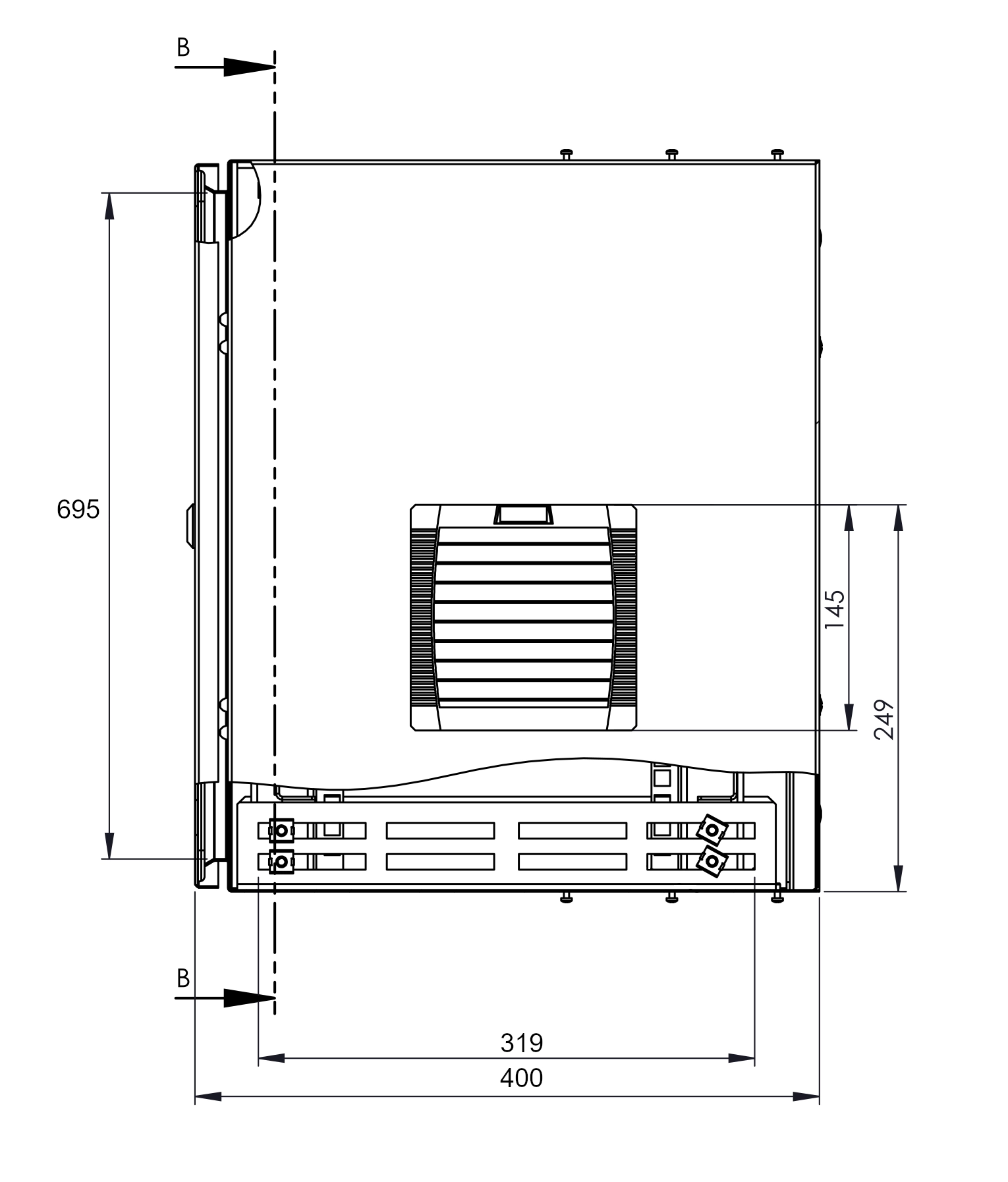
Szafa posiada 12 otworów Ø29 mm na górze i dole obudowy, ułatwiających prowadzenie okablowania lub montaż systemów wentylacyjnych. W zestawie znajdują się 2 wkładki filtracyjne. Głębokość użytkowa wynosi 340 mm, a nośność do 60 kg. Szafa dostarczana jest w formie złożonej, gotowa do szybkiego montażu.

Wykonanie SWK
Obudowa wykonana została z blachy stalowej DC01 malowanej proszkowo na kolor RAL 7035, co zapewnia odporność na korozję i estetyczny wygląd. Drzwi wyposażono w poliuretanową uszczelkę, a konstrukcja spełnia normę szczelności IP54, chroniąc sprzęt przed kurzem i wilgocią.
Pliki do pobrania:
Dane techniczne
| Wysokość w U | 15 |
| Stopień szczelności IP | 54 |
| Głębokość użytkowa | 340 mm |
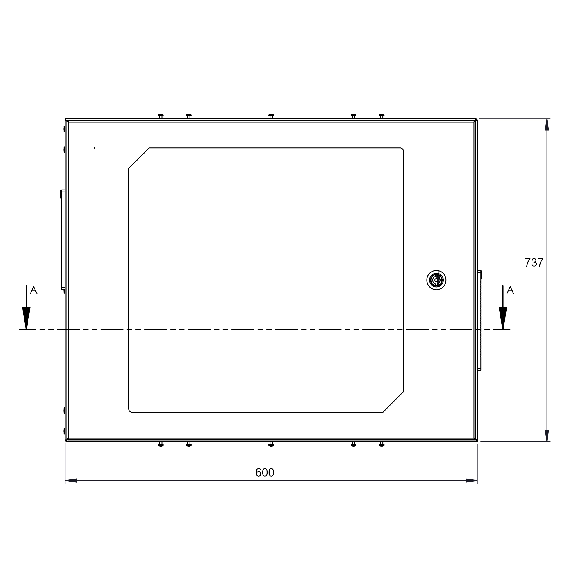
| Szerokość | 600 mm |
| Wysokość | 737 mm |
| Głębokość | 400 mm |
| Drzwi podwójne | Nie |
| Wersja drzwi | Drzwi z szybą |
| Zastosowanie | Wewnętrzne |
| Wykonanie | Stal |
| Kolor | Szary RAL7035 |
| Waga | 34 kg |
| Maksymalny udźwig | 60 kg |
| Klasa ETIM | EC002499 |
| Deklaracje zgodności | CE |
Dane techniczne
| Wysokość w U | 15 |
| Stopień szczelności IP | 54 |
| Głębokość użytkowa | 340 mm |
| Szerokość | 600 mm |
| Wysokość | 737 mm |
| Głębokość | 400 mm |
| Drzwi podwójne | Nie |
| Wersja drzwi | Drzwi z szybą |
| Zastosowanie | Wewnętrzne |
| Wykonanie | Stal |
| Kolor | Szary RAL7035 |
| Waga | 34 kg |
| Maksymalny udźwig | 60 kg |
| Klasa ETIM | EC002499 |
| Deklaracje zgodności | CE |
Akcesoria
Szafa rack wisząca 19" 22U 600x600 IP54 Wewnętrzna Szary SWK19-22U-60-DP-W
Wiszące szafy o podwyższonej szczelności, doskonałe do miejsc o wysokim zapyleniu lub zawilgoceniu. Przede wszystkim polecane do montażu na halach produkcyjnych lub w pobliżu miejsc z otwartym dostępem powietrza.
Szafa wisząca rack 19" 22Ux600x600 IP54 Ściany boczne pełne Drzwi pełne Zewnętrzna RAL 7035 szara SWK19-22U-60-DP-Z
Szafa wisząca typu SWK 22U/600 z drzwiami pełnymi.
Szafa rackowa do montażu zewnętrznego.
Nośność 60 kg.
Szafa rack wisząca 19" 22U 600x600 IP54 Wewnętrzna RAL 7035 SWK19-22U-60-DS-W
Wiszące szafy o podwyższonej szczelności, doskonałe do miejsc o wysokim zapyleniu lub zawilgoceniu. Przede wszystkim polecane do montażu na halach produkcyjnych lub w pobliżu miejsc z otwartym dostępem powietrza.
Szafa wisząca rack 19" 22Ux600x600 IP54 Ściany boczne pełne Drzwi z szybą Zewnętrzna Szara SWK19-22U-60-DS-Z
Szafa wisząca typu SWK 22U/600 z drzwiami przeszklonymi, do zastosowania na zewnątrz.
Szafa wisząca rack SWK 19" 6Ux600 IP54 Ściany boczne pełne Drzwi przeszklone Szara Wewnętrzna SWK19-6U-60-DS-W
Szafa wisząca typu SWK 6U/600 z drzwiami przeszklonymi.
Dostępny Wariant: wewnętrzny (montaż wewnątrz budynku)
Szafa rack wisząca 19" 12U 600x600 IP54 Wewnętrzna SWK19-12U-60-DP-W
Wiszące szafy o podwyższonej szczelności, doskonałe do miejsc o wysokim zapyleniu lub zawilgoceniu. Przede wszystkim polecane do montażu na halach produkcyjnych lub w pobliżu miejsc z otwartym dostępem powietrza.
Szafa rack zewnętrzna 19" 6U 600x400 wisząca IP54 Szara SWK19-6U-40-DP-Z
Szafa rack zewnętrzna 19" 6U 600x400 wisząca IP54 Szara SWK19-6U-40-DS-Z
Szafa wisząca typu SWK 6U/400 z drzwiami przeszklonymi.
Wersja do montażu zewnętrznego.
Szafa rack zewnętrzna 19" 6U 600x600 wisząca IP54 Szara SWK19-6U-60-DS-Z
Wiszące szafy rack zewnętrzne o podwyższonej szczelności, doskonałe do miejsc o wysokim zapyleniu lub zawilgoceniu. Przede wszystkim polecane do montażu na halach produkcyjnych lub w pobliżu miejsc z otwartym dostępem powietrza. Szafy w wykonaniu zewnętrznym posiadają gumową uszczelkę oraz pokryte są specjalnym podkładem, zapewniającym im trwałość i odporność na warunki atmosferyczne.
Szafa rack zewnętrzna 19" 9U 600x400 wisząca IP54 Szara SWK19-9U-40-DP-Z
Wiszące szafy rack zewnętrzne o podwyższonej szczelności, doskonałe do miejsc o wysokim zapyleniu lub zawilgoceniu. Przede wszystkim polecane do montażu na halach produkcyjnych lub w pobliżu miejsc z otwartym dostępem powietrza. Szafy w wykonaniu zewnętrznym posiadają gumową uszczelkę oraz pokryte są specjalnym podkładem, zapewniającym im trwałość i odporność na warunki atmosferyczne.
Szafa rack zewnętrzna 19" 9U 600x400 wisząca IP54 Szara SWK19-9U-40-DS-Z
Wiszące szafy rack zewnętrzne o podwyższonej szczelności, doskonałe do miejsc o wysokim zapyleniu lub zawilgoceniu. Przede wszystkim polecane do montażu na halach produkcyjnych lub w pobliżu miejsc z otwartym dostępem powietrza. Szafy w wykonaniu zewnętrznym posiadają gumową uszczelkę oraz pokryte są specjalnym podkładem, zapewniającym im trwałość i odporność na warunki atmosferyczne.
Szafa rack zewnętrzna 19" 9U 600x600 wisząca IP54 Szara SWK19-9U-60-DP-Z
Wiszące szafy rack zewnętrzne o podwyższonej szczelności, doskonałe do miejsc o wysokim zapyleniu lub zawilgoceniu. Przede wszystkim polecane do montażu na halach produkcyjnych lub w pobliżu miejsc z otwartym dostępem powietrza. Szafy w wykonaniu zewnętrznym posiadają gumową uszczelkę oraz pokryte są specjalnym podkładem, zapewniającym im trwałość i odporność na warunki atmosferyczne.
Szafa rack zewnętrzna 19" 9U 600x600 wisząca IP54 Szara SWK19-9U-60-DS-Z
Szafa rack wisząca 19" 6U 600x400 IP54 Wewnętrzna RAL 7035 SWK19-6U-40-DP-W
Szafa wisząca typu SWK 6Ux600x400 z drzwiami pełnymi w kolorze RAL 7035.
Szafa rack wisząca 19" 6U 600x600 IP54 Wewnętrzna RAL 7035 SWK19-6U-60-DP-W
Szafa wisząca typu SWK 6U/600 z drzwiami pełnymi.
Szafa rack do montażu wewnętrznego.
Szafa rack wisząca 19" 9U 600x400 IP54 Wewnętrzna Szara SWK19-9U-40-DP-W
Wiszące szafy o podwyższonej szczelności, doskonałe do miejsc o wysokim zapyleniu lub zawilgoceniu. Przede wszystkim polecane do montażu na halach produkcyjnych lub w pobliżu miejsc z otwartym dostępem powietrza.
Szafa rack wisząca 19" 9U 600x400 IP54 Wewnętrzna RAL 7035 SWK19-9U-40-DS-W
Szafa wisząca typu SWK 9U/400 z drzwiami przeszklonymi.
Szafa rack wisząca 19" 9U 600x600 IP54 Wewnętrzna RAL 7035 SWK19-9U-60-DP-W
Szafa wisząca typu SWK 9U/600 z drzwiami pełnymi.
Szafa serwerowa rack do montażu wewnętrznego.
Szafa rack wisząca 19" 9U 600x600 IP54 Wewnętrzna RAL 7035 SWK19-9U-60-DS-W
Wiszące szafy o podwyższonej szczelności, doskonałe do miejsc o wysokim zapyleniu lub zawilgoceniu. Przede wszystkim polecane do montażu na halach produkcyjnych lub w pobliżu miejsc z otwartym dostępem powietrza.
Szafa rack zewnętrzna 19" 12U 600x400 wisząca IP54 Szara SWK19-12U-40-DS-Z
Szafa rack zewnętrzna 19" 12U 600x600 wisząca IP54 Szara SWK19-12U-60-DP-Z
Wiszące szafy rack zewnętrzne o podwyższonej szczelności, doskonałe do miejsc o wysokim zapyleniu lub zawilgoceniu. Przede wszystkim polecane do montażu na halach produkcyjnych lub w pobliżu miejsc z otwartym dostępem powietrza. Szafy w wykonaniu zewnętrznym posiadają gumową uszczelkę oraz pokryte są specjalnym podkładem, zapewniającym im trwałość i odporność na warunki atmosferyczne.
Szafa rack zewnętrzna 19" 15U 600x400 wisząca IP54 Szara SWK19-15U-40-DP-Z
Wiszące szafy rack zewnętrzne o podwyższonej szczelności, doskonałe do miejsc o wysokim zapyleniu lub zawilgoceniu. Przede wszystkim polecane do montażu na halach produkcyjnych lub w pobliżu miejsc z otwartym dostępem powietrza. Szafy w wykonaniu zewnętrznym posiadają gumową uszczelkę oraz pokryte są specjalnym podkładem, zapewniającym im trwałość i odporność na warunki atmosferyczne.
Szafa rack zewnętrzna 19" 15U 600x400 wisząca IP54 Szara SWK19-15U-40-DS-Z
Wiszące szafy rack zewnętrzne o podwyższonej szczelności, doskonałe do miejsc o wysokim zapyleniu lub zawilgoceniu. Przede wszystkim polecane do montażu na halach produkcyjnych lub w pobliżu miejsc z otwartym dostępem powietrza. Szafy w wykonaniu zewnętrznym posiadają gumową uszczelkę oraz pokryte są specjalnym podkładem, zapewniającym im trwałość i odporność na warunki atmosferyczne.
Szafa rack zewnętrzna 19" 15U 600x600 wisząca IP54 Szara SWK19-15U-60-DS-Z
Szafa rack zewnętrzna 19" 18U 600x400 wisząca IP54 Szara SWK19-18U-40-DP-Z
Wiszące szafy rack zewnętrzne o podwyższonej szczelności, doskonałe do miejsc o wysokim zapyleniu lub zawilgoceniu. Przede wszystkim polecane do montażu na halach produkcyjnych lub w pobliżu miejsc z otwartym dostępem powietrza. Szafy w wykonaniu zewnętrznym posiadają gumową uszczelkę oraz pokryte są specjalnym podkładem, zapewniającym im trwałość i odporność na warunki atmosferyczne.
Szafa rack zewnętrzna 19" 18U 600x400 wisząca IP54 Szara SWK19-18U-40-DS-Z
Szafa wisząca typu SWK 18U/400 z drzwiami przeszklonymi, wersja do montażu zewnętrznego.
Szafa rack zewnętrzna 19" 18U 600x600 wisząca IP54 Szara SWK19-18U-60-DP-Z
Wiszące szafy rack zewnętrzne o podwyższonej szczelności, doskonałe do miejsc o wysokim zapyleniu lub zawilgoceniu. Przede wszystkim polecane do montażu na halach produkcyjnych lub w pobliżu miejsc z otwartym dostępem powietrza. Szafy w wykonaniu zewnętrznym posiadają gumową uszczelkę oraz pokryte są specjalnym podkładem, zapewniającym im trwałość i odporność na warunki atmosferyczne.
Szafa rack wisząca 19" 12U 600x400 IP54 Wewnętrzna RAL 7035 SWK19-12U-40-DP-W
Wiszące szafy o podwyższonej szczelności, doskonałe do miejsc o wysokim zapyleniu lub zawilgoceniu. Przede wszystkim polecane do montażu na halach produkcyjnych lub w pobliżu miejsc z otwartym dostępem powietrza.
Szafa rack wisząca 19" 12U 600x400 IP54 Wewnętrzna RAL 7035 SWK19-12U-40-DS-W
Szafa wisząca typu SWK 12U/400 z drzwiami przeszklonymi.
Wersja do montażu wewnętrznego.
Szafa rack wisząca 19" 15U 600x400 IP54 Wewnętrzna RAL 7035 SWK19-15U-40-DP-W
Wiszące szafy o podwyższonej szczelności, doskonałe do miejsc o wysokim zapyleniu lub zawilgoceniu. Przede wszystkim polecane do montażu na halach produkcyjnych lub w pobliżu miejsc z otwartym dostępem powietrza.
Szafa rack wisząca 19" 15U 600x600 IP54 Wewnętrzna RAL 7035 SWK19-15U-60-DS-W
Wiszące szafy o podwyższonej szczelności, doskonałe do miejsc o wysokim zapyleniu lub zawilgoceniu. Przede wszystkim polecane do montażu na halach produkcyjnych lub w pobliżu miejsc z otwartym dostępem powietrza.
Szafa rack wisząca 19" 15U 600x600 IP54 Wewnętrzna Szara SWK19-15U-60-DP-W
Wiszące szafy o podwyższonej szczelności, doskonałe do miejsc o wysokim zapyleniu lub zawilgoceniu. Przede wszystkim polecane do montażu na halach produkcyjnych lub w pobliżu miejsc z otwartym dostępem powietrza.
Szafa rack wisząca 19" 18U 600x400 IP54 Wewnętrzna RAL 7035 SWK19-18U-40-DP-W
Szafa rack wisząca 19" 18U 600x400 IP54 Wewnętrzna RAL 7035 SWK19-18U-40-DS-W
Szafa wisząca typu SWK 18U/400 z drzwiami przeszklonymi.
Dostępne warianty: wewnętrzny.
Szafa rack wisząca 19" 18U 600x400 IP54 Wewnętrzna Szary SWK19-18U-60-DP-W
Wiszące szafy o podwyższonej szczelności, doskonałe do miejsc o wysokim zapyleniu lub zawilgoceniu. Przede wszystkim polecane do montażu na halach produkcyjnych lub w pobliżu miejsc z otwartym dostępem powietrza.
Szafa rack wisząca 19" 18U 600x600 IP54 Wewnętrzna RAL 7035 SWK19-18U-60-DS-W
Wiszące szafy o podwyższonej szczelności, doskonałe do miejsc o wysokim zapyleniu lub zawilgoceniu. Przede wszystkim polecane do montażu na halach produkcyjnych lub w pobliżu miejsc z otwartym dostępem powietrza.
Szafa rack zewnętrzna 19" 12U 600x400 wisząca IP54 Szara SWK19-12U-40-DP-Z
Wiszące szafy rack zewnętrzne o podwyższonej szczelności, doskonałe do miejsc o wysokim zapyleniu lub zawilgoceniu. Przede wszystkim polecane do montażu na halach produkcyjnych lub w pobliżu miejsc z otwartym dostępem powietrza. Szafy w wykonaniu zewnętrznym posiadają gumową uszczelkę oraz pokryte są specjalnym podkładem, zapewniającym im trwałość i odporność na warunki atmosferyczne.
Szafa rack wisząca 19" 12U 600x600 IP54 Wewnętrzna RAL 7035 SWK19-12U-60-DS-W
Wiszące szafy o podwyższonej szczelności, doskonałe do miejsc o wysokim zapyleniu lub zawilgoceniu. Przede wszystkim polecane do montażu na halach produkcyjnych lub w pobliżu miejsc z otwartym dostępem powietrza.
Szafa rack zewnętrzna 19" 12U 600x600 wisząca IP54 Szara SWK19-12U-60-DS-Z
Wiszące szafy rack zewnętrzne o podwyższonej szczelności, doskonałe do miejsc o wysokim zapyleniu lub zawilgoceniu. Przede wszystkim polecane do montażu na halach produkcyjnych lub w pobliżu miejsc z otwartym dostępem powietrza. Szafy w wykonaniu zewnętrznym posiadają gumową uszczelkę oraz pokryte są specjalnym podkładem, zapewniającym im trwałość i odporność na warunki atmosferyczne.
Szafa wisząca rack 19" 6Ux600x600 IP54 Ściany boczne pełne Drzwi pełne Zewnętrzna RAL 7035 szara SWK19-6U-60-DP-Z
Szafa wisząca typu SWK 6U/600 z drzwiami pełnymi.
Szafa rack do montażu na zewnątrz.
Nośność 60 kg.
Szafa rack wisząca 19" 6U 600x400 IP54 Wewnętrzna Drzwi z szybą RAL 7035 SWK19-6U-40-DP-W
Szafa wisząca typu SWK 6U/400 z drzwiami przeszklonymi.
Dostępny wariant: wewnętrzny (montaż wewnątrz budynku)
Szafa wisząca RACK 19" 15Ux600x600 IP54 Ściany boczne pełne Drzwi pełne Zewnętrzna Szara SWK19-15U-60-DP-Z
Wiszące szafy rack zewnętrzne o podwyższonej szczelności, doskonałe do miejsc o wysokim zapyleniu lub zawilgoceniu. Przede wszystkim polecane do montażu na halach produkcyjnych lub w pobliżu miejsc z otwartym dostępem powietrza. Szafy w wykonaniu zewnętrznym posiadają gumową uszczelkę oraz pokryte są specjalnym podkładem, zapewniającym im trwałość i odporność na warunki atmosferyczne.
Szafa rack zewnętrzna 19" 18U 600x600 wisząca IP54 SzaraSWK19-18U-60-DS-Z
Wiszące szafy rack zewnętrzne o podwyższonej szczelności, doskonałe do miejsc o wysokim zapyleniu lub zawilgoceniu. Przede wszystkim polecane do montażu na halach produkcyjnych lub w pobliżu miejsc z otwartym dostępem powietrza. Szafy w wykonaniu zewnętrznym posiadają gumową uszczelkę oraz pokryte są specjalnym podkładem, zapewniającym im trwałość i odporność na warunki atmosferyczne.
Szafa wisząca rack 19" dwudzielna 12U 600x400 IP54 Ściany boczne pełne Drzwi pełne Zewnętrzna RAL 7035 szara SWKD19-12U-40-DP-Z
19" Szafa Hermetyczna o podwyższonym stopniu ochrony - IP54
9U/600
DWUDZIELNA
Szafa wisząca rack 19" dwuczęściowa 15U 600x400 IP54 Ściany boczne pełne Drzwi z szybą Zewnętrzna RAL 7035 szara SWKD19-15U-40-DS-Z
Szafa wisząca rack 19" dwuczęściowa 12U 600x400 IP54 Ściany boczne pełne Drzwi z szybą Wewnętrzna RAL 7035 szara SWKD19-12U-40-DS-W
Szafa wisząca rack 19″ dwuczęściowa 12U 600x600 IP54 Ściany boczne pełne Drzwi z szybą Wewnętrzna RAL 7035 szary SWKD19-12U-60-DS-W
Szafa wisząca rack 19″ dwuczęściowa 18U 600x400 IP54 Ściany boczne pełne Drzwi z szybą Zewnętrzna RAL 7035 szara SWKD19-18U-40-DS-Z
Szafa wisząca rack 19" dwuczęściowa 18U 600x600 IP 54 Ściany boczne pełne Drzwi pełne Zewnętrzna RAL 7035 szara SWKD19-18U-60-DP-Z
Szafa wisząca rack 19" dwuczęściowa 18U 600x600 IP54 Ściany boczne pełne Drzwi z szybą Zewnętrzna RAL 7035 szara SWKD19-18U-60-DS-Z
Szafa wisząca rack 19″ dwuczęściowa 15U 600x400 IP54 Ściany boczne pełne Drzwi z szybą Wewnętrzna RAL 7035 szara SWKD19-15U-40-DS-W
19" Szafa Hermetyczna o podwyższonym stopniu ochrony - IP54
15U/400
DWUDZIELNA
Szafa wisząca rack 19″ dwuczęściowa 15U 600x600 IP54 Ściany boczne pełne Drzwi z szybą Wewnętrzna RAL 7035 szara SWKD19-15U-60-DS-W
Szafa wisząca rack 19″ dwuczęściowa 18U 600x400 IP54 Ściany boczne pełne Drzwi z szybą Wewnętrzna RAL 7035 Szara SWKD19-18U-40-DS-W
Szafa wisząca rack 19″ dwuczęściowa 18U 600x600 IP54 Ściany boczne pełne Drzwi pełne Wewnętrzna RAL 7035 szara SWKD19-18U-60-DP-W
19" Szafa Hermetyczna o podwyższonym stopniu ochrony - IP54
18U/600
DWUDZIELNA
Szafa wisząca rack 19″ dwuczęściowa 18U 600x600 IP54 Ściany boczne pełne Drzwi z szybą Wewnętrzna RAL 7035 szara SWKD19-18U-60-DS-W
19" Szafa Hermetyczna o podwyższonym stopniu ochrony - IP54
18U/600
DWUDZIELNA
Klimatyzator do szafy sterowniczej i RACK Montaż boczny lub na drzwiach Moc chłodnicza 350W Wewnętrzny RS-KLM-350-W
Klimatyzator do szaf sterowniczych i racków, montowany bocznie lub na drzwiach. Zapewnia skuteczną chłodność wewnętrzną, doskonale regulując temperaturę i utrzymując optymalne warunki pracy.
Wentylator 120mm 162m³/h 65°C do szafy rack Z kablem zasilającym Sabaj
Wysoka wydajność i wykonanie aluminium. Nasz wentylator to nie tylko niezawodność, ale także wszechstronność zastosowań, dzięki czemu jest idealnym wyborem do różnych typów szaf i systemów wentylacyjnych. Możliwość dobrania szerokiej gamy akcesoriów takich jak termostaty do regulowania temperatury, filtry i kratki wentylacyjne.
Higrostat do wentylatora/grzałki RS-0600 do szaf sterowniczych Sabaj
Grzałka do szafy sterowniczej z wentylatorem 100W IP20 230V 112x80mm RS-9990
Kompaktowy, wysokowydajny grzejnik z wentylatorem zapobiega powstawaniu kondensacji i szronu oraz zapewnia równomiernie rozprowadzoną temperaturę wewnętrzną w obudowach z elementami elektrycznymi/elektronicznymi. Ten grzejnik z wentylatorem może być obsługiwany wyłącznie razem z wentylatorem.
Grzałka do szafy sterowniczej Półprzewodnikowa 50W PTC IP20 RS-0012
Rezystor PTC. Anodowany profil aluminium. Kompatybilne połączenie z termostatem. Wygodne mocowanie na klips na szynie. Optymalny stopień szczelności. Certyfikowany produkt. Niepalne tworzywo sztuczne. Napięcie 120V
Sabaj Kieszeń na dokumentacje A4 do szaf rack 19" i 10" RS-2900
Kieszeń na dokumentacje A4 - do mocowania na drzwi szafy.
Półka do szafy rack 19" 1U 300mm Perforowana, do 15kg, Szara 19-0156C
Półka do szafy rack 19" 1U 350mm Perforowana, do 15kg, Szary 19-0142S
Półka 1U w standardzie 19", o głębokości 350 mm, nośność 15kg.
Dostępny kolor: Szary
Półka rack 19" 1U wysuwana 250mm +200 4-punktowa Stalowa 19-0054S
Półka 1U gł. 250, Regulacja +/- 200 mm, wysuwana, nośność 50 kg.
Dostępny kolor: Szary
Lampa LED do szafy sterowiczej 5W 290 LM oświetlenie AC 120-240V mocowanie magnetyczne RS-1010
Lampa LED do szafy sterowiczej o mocy 5W to innowacyjne rozwiązanie, które pozwoli Ci skutecznie oświetlić wnętrze szafy. Z jasnością wynoszącą 290 LM oraz diodami LED o kącie świetlnym 120 stopni i barwie jasnego światła dziennego (6500K), lampa gwarantuje klarowne oświetlenie przy jednoczesnym oszczędzaniu energii.
Listwa zasilająca antyprzepięciowa z warystorem 7 gniazd 2m 360 do telewizora, biurka 19-LZ7GZB
Listwa antyprzepięciowa z warystorem idealnie nadaje się do telewizora, biurka, na ścianę, szafy rack 19" oraz podnośników i uchwytów elektrycznych do telewizora firmy Sabaj dzięki płaskiej wtyczce.
Kieszeń na dokumenty A3 do szaf rack 19" i 10" Stal RAL7035 RS-0029
Lakier do zaprawek lakierniczych RAL 7035 z pędzelkiem RS-7035
Lakier do zaprawek lakierniczych 50ml RAL 7035 z pędzelkiem
Zestaw uziemiający do szaf wiszących rack 19" SWK SWK-D 19-0162-A
W skład zestawu wchodzi:
-szyna uziemiająca
-komplet przewodów
-komplet elementów złącznych
Organizer kabli Przepust piankowy do szaf serwerowych (SWK,RH) 345 x 155 mm DFOAM-SWK-RH
Organizer kabli z przepustem piankowym do dowolnej konfiguracji kabli. Montaż podłogowy, domyślnie kompatybilny z obudowami serwerowymi hermetycznymi Sabaj RH i SWK, kompatybilny także z szafami innych producentów – przy zastosowaniu własnych metod montażu.
Uchwyt na słup do obudowy hermetycznej RH 600x100
Uchwyt umożliwiający montaż obudowy RH na słupie
Modułowy pionowy organizer kabli 5U RAL 7035 do szaf RACK
Zapomnij o bałaganie kabli! Nasz pionowy modułowy organizer to idealne rozwiązanie do sprawnego porządkowania kabli w szafie Rack i nie tylko. Uniwersalny montaż, eleganckie haczyki i możliwość łączenia z innymi modułami zapewnią Ci kompleksowe rozwiązanie do organizacji kabli. Odkryj, jak prosty może być porządek
Modułowy pionowy organizer kabli 3U RAL 7035 do szaf RACK
Zapomnij o bałaganie kabli! Nasz pionowy modułowy organizer to idealne rozwiązanie do sprawnego porządkowania kabli w szafie Rack i nie tylko. Uniwersalny montaż, eleganckie haczyki i możliwość łączenia z innymi modułami zapewnią Ci kompleksowe rozwiązanie do organizacji kabli. Odkryj, jak prosty może być porządek
Organizer kabli poziomy 1U do szafy rack 19" Metalowy szary 19-0037S
Organizator Kablowy Poziomy - 1U METALOWY
Hak do kabli do szafy rack 19" 10" Metalowy 90x90mm Szary 19-0041S
Hak do kabli do szafy rack 60x42mm Kablowy Plastikowy Uniwersalny BIAŁY 19-0039 B
Haczyk kablowy wykonany z wytrzymałego i niełamliwego tworzywa ABS.
Możliwość montażu w każdym otworze o wymiarach 10x10 mm w stali o grubości od 0.8 do 1.5 mm.
Maskownica 1U do szaf rack 19" Stalowa Szara 19-0062S
Panel zaślepiający 1U.
Maskownica 2U panel zaślepiający do szaf rack 19" Czarny 19-0063C Sabaj
Panel zaślepiający 2U w standardzie 19"
Maskownica 3U panel zaślepiający do szaf rack 19" Szary 19-0064S Sabaj
Panel zaślepiający 3U do szaf serwerowych 19 cali.
Stalowa Maskownica 1U do szaf rack 19" Szary Na Zatrzask DC01 19-0151S
Stalowy Panel maskujący 1U do szaf 19 calowych na zatrzask
Wentylator do szafy sterowniczej z filtrem Wydajność 55 m3/h IP54 RS-8000
Wentylator 120mm 162m³/h z termostatem i kablem do szafy rack Aluminium Sabaj
Wysoka wydajność i wykonanie aluminium. Kabel zasilający 1m i termostat regulujący w zestawie. Nasz wentylator to nie tylko niezawodność, ale także wszechstronność zastosowań, dzięki czemu jest idealnym wyborem do różnych typów szaf i systemów wentylacyjnych. Możliwość dobrania szerokiej gamy akcesoriów takich jak termostaty do regulowania temperatury, filtry i kratki wentylacyjne.
14-dni na zwrot
szybka wysyłka
601-198-222
